51186:新築戸建 Cradle garden 南足柄市塚原第36 1号棟 全1棟|新築分譲住宅
| 価格 | 2,580万円 |
|---|---|
| 所在地 | 南足柄市塚原 |
| 交通 | 大雄山線 塚原駅まで 徒歩7分 小田急線 栢山駅まで 徒歩24分 |
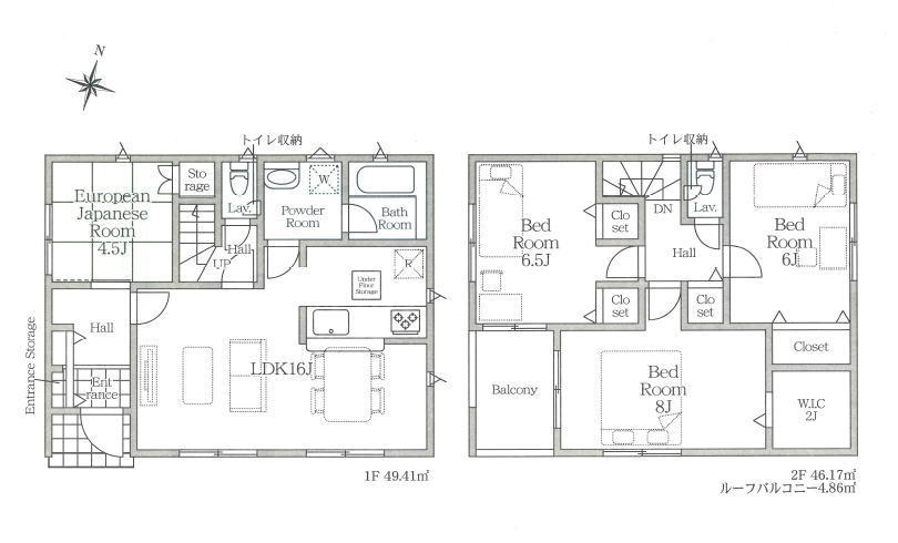
| 間取 | 4LDK |
| 土地面積 | 136.09m²(41.16坪) |
| 建物面積 | 95.58m²(28.91坪) |
| 私道面積 | |
| 築年月 | 2026/05 |
| 学区 | 小学校区:岡本 150m 中学校区:岡本 500m |
| 建物構造 | 木造 |
|---|---|
| 階建 | 地上2階建 |
| 建ぺい率 | 70% |
| 容積率 | 200% |
| 地目 | 宅地 |
| 用途地域 | 第一種住居地域 |
| 土地権利 | 所有権 |
| 取引態様 | 仲介 |
| 引渡時期 | 2026年05月下旬 |
| セットバック | |
|---|---|
| 接道 | 南 4.5m(幅員) 公道 6.3m(接面) 西 8.9m(幅員) 公道 10.9m(接面) |
| 諸費用 | |
| 他法条例 | |
| 建築確認番号 | 第KBI-SGM26-10-0184号 |
| 取引条件有効期限 | 令和08年3月20日 |
特色
駐車場、対面キッチン、システムキッチン(浄水器一体型水栓)、床下収納、シャワードレッサー、浴室乾燥機、1坪バス、オートバス、シャワートイレ1F/2F、人感センサー付玄関灯、TVモニター付インターホン、ピッキング対策付玄関ドア、複層ガラス、階段手摺、24時間換気、角地、南道路、日当たり良好、フラット35S、制震装置、住宅性能評価取得
コメント
南足柄市塚原の新築一戸建て住宅です。 ※詳細分かり次第追記いたします※





