51052:中古戸建 小田原市飯泉 ゆとりのある庭付き4DK中古戸建て
| 価格 | 1,900万円 | 
|---|---|
| 所在地 | 小田原市飯泉 | 
| 交通 | JR東海道線 鴨宮駅まで 徒歩23分 | 
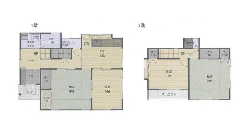
| 間取 | 4DK | 
| 土地面積 | 198.4m²(60.01坪) | 
| 建物面積 | 86.51m²(26.16坪) | 
| 私道面積 | |
| 築年月 | 1980/05 | 
| 学区 | 小学校区:豊川 600m 中学校区:鴨宮 1,000m  | 
                
| 建物構造 | 木造 | 
|---|---|
| 階建 | 地上2階建 | 
| 建ぺい率 | 60% | 
| 容積率 | 200% | 
| 地目 | 宅地 | 
| 用途地域 | 第一種中高層住居専用地域 | 
| 土地権利 | 所有権 | 
| 取引態様 | 仲介 | 
| 引渡時期 | 相談 | 
| セットバック | |
|---|---|
| 接道 | 西 4m(幅員) 公道 | 
| 諸費用 | |
| 他法条例 | |
| 建築確認番号 | |
| 取引条件有効期限 | 令和07年11月17日 | 
特色
準防火、公営水道、公共下水、東京電力、プロパン、駐車場
コメント
小田原市飯泉の中古戸建て、ゆったりとした庭付きで、陽当たり良好の心地よい住まい。敷地面積は約60坪と広々としており、ガーデニングや家庭菜園、駐車スペースの拡張など多彩な使い方が可能です。
西側約4mの公道に接道し、車の出入りもスムーズ。国道255号線まで約270m(徒歩4分)とアクセスも良好で、ホームセンターやコンビニ、飲食店など生活利便施設が充実しています。
JR東海道線「鴨宮」駅まで徒歩23分、車で約5分。通勤・通学やお出かけにも便利な立地です。築年数を活かしつつ、リノベーションで自分好みの空間に仕上げるのもおすすめ。
間取り変更や内装リフォームで、現代的な暮らしに合わせた快適な住まいへと再生できます。
広い敷地を活かしてウッドデッキや趣味のスペースを設けるなど、アイデア次第で理想のマイホームが実現可能です。
ゆとりある敷地と利便性を兼ね備えた、リノベーション素材としても魅力的な一邸です。
              



