 51039
|
開成町吉田島 |
4,180万円 |
− 5分 |
141.91m2 101.02m2 |
4LDK 木造 |
R08/03
 令和08年03月下旬 |
|
  
|
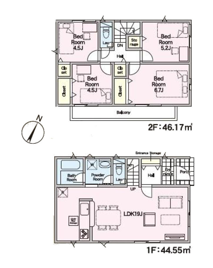
\小田急線急行停車 開成駅徒歩5分の立地 生活環境充実!子育て世帯に嬉しい住環境/
小田急線急行停車駅「開成」駅から徒歩5分。通勤や通学にも便利なアクセスの良さが魅力の新築一戸建てが、開成町吉田島に誕生します。駅近でありながら、穏やかな住宅街の中に位置し、落ち着いた暮らしを叶えます。 間取りはゆとりある4LDK。リビングは家族が自然と集まる明るく開放的な空間。駐車スペースも2台分を確保しており、ご夫婦それぞれのお車や来客用にも安心です。 周辺環境も魅力的です。徒歩約3分(約230m)には24時間営業の「マックスバリュ開成店」があり、忙しい日々の買い物にも便利。さらに、約150mの場所には緑豊かな公園があり、小さなお子様とのお散歩や遊び場としてぴったり。日常の中に自然を感じながら、のびのびと子育てができる環境が整っています。 本物件は「住宅性能評価書」取得済みで、耐震性・断熱性・劣化対策など、安心の基準を満たした住まいです。長く快適に暮らせる高品質な住まいをお探しの方におすすめです。 開成駅徒歩5分という利便性と、子育て世帯にも嬉しい穏やかな住環境。この街で、新しい生活を始めてみませんか。 |
 51040
|
開成町吉田島 |
3,980万円 |
− 5分 |
159.73m2 98.53m2 |
4LDK 木造 |
R08/03
 令和08年03月下旬 |
|
  
|
\小田急線急行停車 開成駅徒歩5分の立地 生活環境充実!子育て世帯に嬉しい住環境/
小田急線急行停車駅「開成」駅から徒歩5分。通勤や通学にも便利なアクセスの良さが魅力の新築一戸建てが、開成町吉田島に誕生します。駅近でありながら、穏やかな住宅街の中に位置し、落ち着いた暮らしを叶えます。 全居室南向きの間取りはゆとりある4LDK。リビングは家族が自然と集まる明るく開放的な空間。駐車スペースも2台分を確保しており、ご夫婦それぞれのお車や来客用にも安心です。 周辺環境も魅力的です。徒歩約3分(約230m)には24時間営業の「マックスバリュ開成店」があり、忙しい日々の買い物にも便利。さらに、約150mの場所には緑豊かな公園があり、小さなお子様とのお散歩や遊び場としてぴったり。日常の中に自然を感じながら、のびのびと子育てができる環境が整っています。 本物件は「住宅性能評価書」取得済みで、耐震性・断熱性・劣化対策など、安心の基準を満たした住まいです。長く快適に暮らせる高品質な住まいをお探しの方におすすめです。 開成駅徒歩5分という利便性と、子育て世帯にも嬉しい穏やかな住環境。この街で、新しい生活を始めてみませんか。
|
 51058
|
開成町吉田島 |
3,480万円 |
− 17分 |
140.62m2 103.5m2 |
4LDK 木造 |
R08/03
 令和09年03月下旬 |
|
 
|
| ※詳細は確認でき次第追記いたします※ |
 51059
|
開成町吉田島 |
3,480万円 |
− 17分 |
140.62m2 103.5m2 |
4LDK 木造 |
R08/03
 令和09年03月下旬 |
|
 
|
| ※詳細は確認でき次第追記いたします※ |
 51046
|
開成町中之名 |
2,980万円 |
6分 4分 |
145.15m2 100.19m2 |
3LDK 木造 |
R08/01
 令和08年01月下旬 |
|
 
|
\安心・快適な暮らしを叶える新築一戸建て 足柄上郡開成町中之名/
家族みんなが心地よく暮らせる安心設計の新築一戸建てが開成町に登場。住宅性能表示取得の高品質住宅で、耐震・断熱・省エネなど快適性と安全性を兼ね備えています。 ゆとりある3LDK+2帖のウォークインクローゼットに加え、リビングには便利なファミリークローゼットを設け、日々の収納もすっきり。 南向きのインナーバルコニーは、天気を気にせず洗濯物を干せる快適空間。さらに、洗面台近くに物干しスペースを設け、家事動線にもこだわりました。 敷地内には並列駐車2台分を確保し、ご家族や来客時にも安心です。開成町ならではの穏やかな住環境で、のびのびとした新生活をはじめませんか? |
 51047
|
開成町中之名 |
2,580万円 |
11分 5分 |
145.16m2 100.81m2 |
4LDK 木造 |
R08/01
 令和08年01月下旬 |
|
 
|
\足柄上郡開成町 安心・快適な暮らしを叶える新築一戸建て/
足柄上郡開成町に、安心と快適を兼ね備えた新築一戸建てが誕生しました。住宅性能表示を取得した品質の高い住まいで、家族が末永く安心して暮らせます。間取りは4LDK+2ウォークインクローゼットの収納もしっかりと考えられた設計。全居室が南向きのため、どのお部屋にも心地よい陽光が差し込み、明るく開放的な空間が広がります。 リビング・ダイニングとつながる5帖のベッドルームは、客間やワークスペースなど多目的に活用可能。家事動線にも配慮した間取りです。また、2つのウォークインクローゼットを備え、収納力もたっぷりです。 駐車スペースは並列で2台駐車可能。車の出し入れもスムーズで、来客時にも安心です。日々の暮らしを快適に、そして永く安心して暮らせる理想の住まい。ぜひ現地で、この心地よさをご体感ください。 |
 51048
|
開成町中之名 |
2,680万円 |
11分 5分 |
145.17m2 96.05m2 |
4LDK 木造 |
R08/01
 令和08年01月下旬 |
|
 
|
\足柄上郡開成町に、安心と快適さを追求した新築一戸建てが登場。/
住宅性能表示取得の高品質住宅で、耐震・断熱・省エネなど快適性と安全性を兼ね備えた住まいです。 間取りは4LDK+シューズインクローク付きで、収納力も充実しています。全居室南向きの設計で、どのお部屋も明るく開放的。 リビング・ダイニング横には4.5帖の和室を配置しており、客間やくつろぎスペース、家事スペースとしても柔軟に活用できます。 家事動線をスムーズにした間取りです。また、インナーバルコニーも完備しており、天候を気にせず洗濯物を干すことができます。駐車スペースは2台分を確保しており、来客時も安心です。快適さと使い勝手を兼ね備えた理想の住まいで、新しい生活を始めてみませんか。 |
 51049
|
開成町中之名 |
2,980万円 |
11分 5分 |
145.16m2 102.67m2 |
4LDK 木造 |
R08/01
 令和08年01月下旬 |
|
 
|
足柄上郡開成町に、安心と快適を兼ね備えた新築一戸建てが誕生しました。 住宅性能表示を取得した品質の高い住まいで、家族が末永く安心して暮らせます。並列駐車2台が可能で、家族で車を利用する方にも便利です。 収納面も充実しており、シューズインクロークを完備。さらにSICから通り抜けできるファミリークロークがあり、家事動線を考えた間取りになっています。リビングからもアクセスできるため、日々の生活がよりスムーズになります。 屋内にはインナーバルコニーがあり、雨の日でも洗濯物を干すことができます。洗面台横には物干しスペースも設けられ、家事が効率よく行えます。 LDK横には4.5帖の和室があり、くつろぎの空間としても活用可能です。ご家族全員が快適に過ごせる工夫が随所に施された、理想的な住まいです。
|
 51053
|
小田原市酒匂1丁目 |
3,500万円 |
− 14分 |
239.38m2 92.26m2 |
6SLDK 木造 |
S60/04 相談 |
|
  
|
ゆったり72坪の、自由な選択を叶える建築条件なしの売地です。JR鴨宮駅徒歩14分。海辺まで歩いて850m約11分という開放的なロケーションに、72坪超の整形地が登場しました。 現在の1985年築の建物は、お客様のアイデア次第で息を吹き返します。レトロな雰囲気を活かしたフルリノベーションで個性的な住まいを実現するか、それとも敷地の大きさを活かして理想のマイホームを新築するか。建築条件なしだからこそ、選択肢は無限大です。 生活に便利な国道1号線までも約650mと程近く、商業施設へのアクセスも良好です。 海風を感じながらこの場所で、小田原ライフをスタートしませんか。
|
 51077
|
小田原市扇町1丁目 |
4,580万円 |
− 15分 |
154.58m2 99.95m2 |
4LDK 木造 |
R08/02
 令和08年03月下旬 |
|
  
|
|ブルーミングガーデン 小田原市扇町1丁目/新築一戸建て|
住宅性能評価書取得・全室南向きの明るい4LDK。 敷地は約46坪の北西角地にあり、さらに南側も通路に面しているため、三方向から光と風が入り込む開放的な住環境が広がっています。 全居室が南向きのつくりで、一日を通して明るく快適に過ごせる点も大きな魅力です。 住宅としての性能も高く、エネルギー消費性能は★★★で削減率20%を達成し、断熱性能は7段階中レベル5を確保した、省エネ性と快適性の双方に優れた住まいとなっています。 室内は、玄関上部に広がる吹抜が開放感を演出し、リビングの折上天井が上質なゆとりを感じさせます。 洗面所はオープンサニタリーとして設計されており、明るく使い勝手が良い空間です。 主寝室には勾配天井を採用し、立体的な広がりが心地よいアクセントになっています。また、洗面所には室内物干しが設けられているため、雨の日や花粉の時期でも安心して洗濯物を干せる、日常に優しい設備も整っています。 開放的な立地と高い住宅性能、そして上質でおしゃれな内装が調和した、永く快適に暮らせる住まいです。ぜひ現地でその魅力をご体感ください。 |
 51072
|
小田原市中村原 |
690万円 |
− 43分 |
239.6m2 117.29m2 |
4DK 軽量鉄骨造 |
S51/02 相談 |
|
 
|
小田原市中村原エリアに佇む、敷地70坪超のゆとりある中古戸建て。1976年4月築 南庭付きで陽当たのよい軽量鉄骨造2階建のしっかりとしたお住まいです。 間取りは使い勝手の良い 4DK。トイレ2ヶ所や、P1台分の駐車スペースを備え、日々の暮らしを快適にサポートします。 敷地にゆとりがあるため、ガーデニングや家庭菜園、趣味の時間も楽しめる住環境です。 周辺は 閑静な住宅地、駅までの道のりも平坦で、日常の移動もスムーズ。即引渡しも可能なため、スケジュールに合わせて新生活をスタートできます。 固定資産税・都市計画税は 年額50,227円。戸建ならではの広さと、庭のある暮らしを実現したい方におすすめの一邸です。 |
 51052
|
小田原市飯泉 |
1,900万円 |
− 23分 |
198.4m2 86.51m2 |
4DK 木造 |
S55/05 相談 |
|
 
|
小田原市飯泉の中古戸建て、ゆったりとした庭付きで、陽当たり良好の心地よい住まい。敷地面積は約60坪と広々としており、ガーデニングや家庭菜園、駐車スペースの拡張など多彩な使い方が可能です。 西側約4mの公道に接道し、車の出入りもスムーズ。国道255号線まで約270m(徒歩4分)とアクセスも良好で、ホームセンターやコンビニ、飲食店など生活利便施設が充実しています。 JR東海道線「鴨宮」駅まで徒歩23分、車で約5分。通勤・通学やお出かけにも便利な立地です。築年数を活かしつつ、リノベーションで自分好みの空間に仕上げるのもおすすめ。 間取り変更や内装リフォームで、現代的な暮らしに合わせた快適な住まいへと再生できます。 広い敷地を活かしてウッドデッキや趣味のスペースを設けるなど、アイデア次第で理想のマイホームが実現可能です。 ゆとりある敷地と利便性を兼ね備えた、リノベーション素材としても魅力的な一邸です。 |
 51060
|
小田原市堀之内 |
3,680万円 |
− 2分 |
129.43m2 98.95m2 |
4LDK 木造 |
R08/03
 令和08年03月下旬 |
|
  
|
\利便性と上質な暮らしを両立した、小田急線富水駅徒歩2分の新築邸宅/
小田原市堀之内、小田急線「富水」駅まで徒歩わずか2分。都心や湘南方面へのアクセスも軽快で、通勤・通学・週末のお出かけもスムーズに。 静かな住環境と利便性を兼ね備えたロケーションです。約6.6mのゆとりある東側道路に面し、車通りも少なく安全性も確保。敷地内には並列2台分のカースペースを完備し、複数台所有のご家庭にも最適です。 16.25帖のゆったりとしたLDKは折り上げ天井で開放感あふれる空間に。リビングと一体利用できる4.5帖の和室は、お子さまの遊び場やゲストルームとして多目的に活用可能です。 主寝室から直接出られる大型バルコニーや、光が差し込む吹き抜け玄関など、細部までデザイン性と快適性を追求しました。 全居室に収納を備え、キッチンはポップアップ天井で機能美と高級感を両立。
国の厳しい基準をクリアした長期優良住宅認定、断熱性能「レベル5」・省エネ性能★★★☆の高性能仕様で、安心・快適な暮らしが長く続きます。 徒歩圏内にはスーパーやドラッグストアなどの商業施設が充実。共働きのご家庭にも嬉しい、生活利便性と住み心地を両立した邸宅です。 |
 51078
|
南足柄市中沼 |
2,680万円 |
− 11分 |
153.88m2 95.57m2 |
4LDK 木造 |
R08/02
 令和08年02月下旬 |
|

|
\安心・快適を備えた“住宅性能評価書取得”の新築一戸建て/
南足柄市中沼に誕生する新築一戸建ては、住宅性能評価書(設計・建設)を取得済みのため、暮らし始めてからも長く安心が続く、確かな品質をお約束します。 建物の品質が第三者機関によって細かく確認されており、耐震性や断熱性、劣化対策などの重要な性能が高い水準で保証されています。 そのため、万が一の災害時にも安心して暮らせるだけでなく、冷暖房効率が良く一年を通して快適な室内環境を保つことができます。また、建物の劣化を抑える工夫が施されているため、長く安心して住み続けられる耐久性の高い住まいであることも大きな魅力です。 さらに、評価書があることで将来的にリフォームや売却を検討する際にも、建物の品質が客観的に示せるため資産価値が伝わりやすい点もメリットです。 住宅性能評価は、暮らしの安心・快適性・資産性をバランスよく支えてくれる、住まい選びにおける大きな安心材料となります。
また暮らしやすい住環境、大雄山線「和田河原」駅まで徒歩11分の便利な立地です。近隣には狩川が流れ、ゆったりとした自然に囲まれた穏やかな住環境が魅力です。 狩川遊歩道では、富士山を眺めながらウォーキングを楽しむことができ、日々のリフレッシュにも最適。 日常の利便性と自然の癒しを同時に享受できる、バランスの良い暮らしが実現します。 ※間取りは後日公開予定です。 |
 51079
|
南足柄市中沼 |
2,380万円 |
− 11分 |
200.5m2 82.62m2 |
3LDK 木造 |
R08/02
 令和08年02月下旬 |
|

|
\安心・快適を備えた“住宅性能評価書取得”の新築一戸建て/
南足柄市中沼に誕生する新築一戸建ては、住宅性能評価書(設計・建設)を取得済みのため、暮らし始めてからも長く安心が続く、確かな品質をお約束します。 建物の品質が第三者機関によって細かく確認されており、耐震性や断熱性、劣化対策などの重要な性能が高い水準で保証されています。 そのため、万が一の災害時にも安心して暮らせるだけでなく、冷暖房効率が良く一年を通して快適な室内環境を保つことができます。また、建物の劣化を抑える工夫が施されているため、長く安心して住み続けられる耐久性の高い住まいであることも大きな魅力です。 さらに、評価書があることで将来的にリフォームや売却を検討する際にも、建物の品質が客観的に示せるため資産価値が伝わりやすい点もメリットです。 住宅性能評価は、暮らしの安心・快適性・資産性をバランスよく支えてくれる、住まい選びにおける大きな安心材料となります。
また暮らしやすい住環境、大雄山線「和田河原」駅まで徒歩11分の便利な立地です。近隣には狩川が流れ、ゆったりとした自然に囲まれた穏やかな住環境が魅力です。 狩川遊歩道では、富士山を眺めながらウォーキングを楽しむことができ、日々のリフレッシュにも最適。 日常の利便性と自然の癒しを同時に享受できる、バランスの良い暮らしが実現します。 ※間取りは後日公開予定です。 |
 51080
|
南足柄市中沼 |
2,780万円 |
− 11分 |
145.27m2 102.87m2 |
4LDK 木造 |
R08/02
 令和08年02月下旬 |
|

|
\安心・快適を備えた“住宅性能評価書取得”の新築一戸建て/
南足柄市中沼に誕生する新築一戸建ては、住宅性能評価書(設計・建設)を取得済みのため、暮らし始めてからも長く安心が続く、確かな品質をお約束します。 建物の品質が第三者機関によって細かく確認されており、耐震性や断熱性、劣化対策などの重要な性能が高い水準で保証されています。 そのため、万が一の災害時にも安心して暮らせるだけでなく、冷暖房効率が良く一年を通して快適な室内環境を保つことができます。また、建物の劣化を抑える工夫が施されているため、長く安心して住み続けられる耐久性の高い住まいであることも大きな魅力です。 さらに、評価書があることで将来的にリフォームや売却を検討する際にも、建物の品質が客観的に示せるため資産価値が伝わりやすい点もメリットです。 住宅性能評価は、暮らしの安心・快適性・資産性をバランスよく支えてくれる、住まい選びにおける大きな安心材料となります。
また暮らしやすい住環境、大雄山線「和田河原」駅まで徒歩11分の便利な立地です。近隣には狩川が流れ、ゆったりとした自然に囲まれた穏やかな住環境が魅力です。 狩川遊歩道では、富士山を眺めながらウォーキングを楽しむことができ、日々のリフレッシュにも最適。 日常の利便性と自然の癒しを同時に享受できる、バランスの良い暮らしが実現します。 ※間取りは後日公開予定です。 |
 51066
|
南足柄市和田河原 |
2,780万円 |
− 3分 |
161.58m2 104.49m2 |
4LDK 木造 |
R08/01
 令和08年01月下旬 |
|
  
|
\家族の笑顔があふれる新しい暮らしを、南足柄市和田河原で。全居室南向きの明るい新築分譲住宅が誕生しました。/
大雄山線「和田河原」駅まで徒歩3分、小田急線「開成」駅も徒歩圏内で、2路線利用可能。電車通勤・通学にも便利な立地で、お出かけやお買い物もスムーズです。 16帖の広々LDKは家族が自然と集まる心地よい空間。続きの6帖和室は、お子さまの遊び場や来客用にも便利です。 2台分の縦列駐車スペース完備で、車生活も快適。北西×東道路の角地ならではの開放感が魅力です。 さらに、住宅性能表示取得済みで、耐震性・断熱性など安心の品質。毎日の暮らしに「安心」と「快適」をお届けします。 家族みんなの“これから”を育む住まいを、ぜひ現地でご体感ください。 |
 51067
|
南足柄市和田河原 |
2,180万円 |
− 3分 |
101m2 77.76m2 |
3LDK 木造 |
R08/01
 令和08年01月下旬 |
|
  
|
\南足柄市和田河原第17 新築分譲住宅 コミュニケーションが生まれる温かな住まい/
大雄山線「和田河原」駅まで徒歩3分。小田急線「開成」駅も徒歩圏内で、通勤・通学・お出かけにもとても便利な立地です。駅近ながら落ち着いた住環境で、毎日の暮らしを快適にサポートします。 間取りは3LDK+リビングイン階段。家族が自然と顔を合わせられる設計で、コミュニケーションが生まれる温かな住まいです。おしゃれなデザインと機能性を両立した空間で、快適な新生活を始めませんか? さらに、住宅性能表示取得済みの安心品質。耐震性や断熱性などの基準を満たした住まいで、永く快適にお過ごしいただけます。 駐車スペースも1台分完備。休日のお出かけや買い物にも便利です。 |
 51068
|
南足柄市和田河原 |
2,480万円 |
− 3分 |
130.91m2 90.72m2 |
4LDK 木造 |
R08/01
 令和08年01月下旬 |
|
  
|
\南足柄市和田河原第17 新築分譲住宅 駅近×安心性能×快適間取りで、家族の笑顔があふれる新しい暮らしを。/
大雄山線「和田河原」駅から徒歩3分という立地で、駅近でありながら落ち着いた住環境が魅力の新築分譲住宅です。小田急線「開成」駅も徒歩圏内で、通勤やお出かけにも便利。電車移動が多いご家族にも嬉しい立地です。 間取りはゆとりある4LDK。19帖のゆったりとしたLDKは、自然と家族が集まる居心地のよい空間です。リビングイン階段を採用しているので、お子さまの帰宅時にも顔を合わせやすく、家族のコミュニケーションが自然と深まります。またデザイン性が高く、空間の主役になる
リビングに階段を取り込むことで、インテリアの一部に。 2階には南向きのワイドバルコニーを設置。陽当たりが良く、洗濯物も快適に干せるほか、天気の良い日はカフェタイムやちょっとしたリラックススペースとしても活用できます。 駐車スペースは2台分確保されています。来客時やお子さまの成長後の車利用にも安心です。 さらに、住宅性能表示を取得した安心の品質で、耐震性や断熱性など住まいとしての基本性能も高水準。長く快適に暮らせるお住まいです。 駅近・安心・快適の三拍子がそろった本物件は、子育て世代のご家族に特におすすめ。日々の暮らしに便利さとぬくもりを感じられる新しい生活を、ここ南足柄市和田河原で始めてみませんか。 |