Cradle garden 山北町向原第7 2号棟 全2棟|新築分譲住宅

価格 2,180万円

1/11
Point

\御殿場線東山北駅徒歩8分 家事動線がスムーズで、性能評価取得の確かな品質。/

足柄上郡山北町向原に、ゆとりある広さと高い安全性を兼ね備えた新築住宅が登場しました。
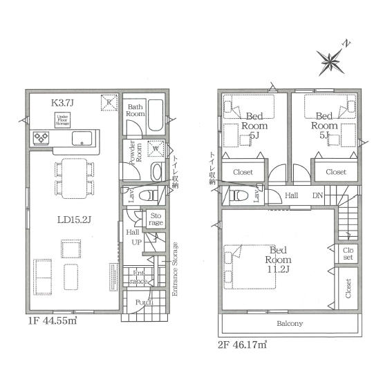
18.9帖の広さを確保したLDKは、開放感あふれ、家族が集まってもゆったりと過ごせる空間です。キッチンから洗面所・浴室へ直接出入りできる設計を採用しており、家事の同時進行をサポートするスマートな動線が魅力です。
2階の南東側は全面バルコニーとなっており、洗濯物や布団を一気に干せるゆとりがあります。朝からたっぷりの光が差し込み、お部屋を明るく彩ります。
「住宅性能評価書」を取得し、さらに「制震装置」を搭載。目に見えない構造部分から、繰り返す地震への備えまで、家族の安全を守ります。
性能評価取得の確かな品質。心地よさと安心感に包まれた新生活を、ここ山北町向原で始めてみませんか。

物件コード「51137」をお伝えください。

電話でお問合せ LINEでお問合せ

物件情報

種目 新築戸建
所在地
山北町向原
交通 JR御殿場線 東山北駅まで 徒歩8分
JR御殿場線 山北駅まで 徒歩37分
最寄りバス停
間取り 3LDK
現況 建設中
西暦築年月 2026/03
土地面積 105.37m²(31.87坪)
建物面積 90.72m²(27.44坪)
建ぺい率 60%
容積率 200%
建物構造 木造
地目 宅地
土地権利 所有権
借地料 -
用途地域 第一種中高層住居専用地域
都市計画 非線引区域
築年月 2026/03
建築確認番号 第KBI-SGM25-10-4741号
諸費用
接道 南東 4.7m(幅員) 公道
セットバック
私道面積 -
駐車場 2台
特色 公営水道、公共下水、東京電力、プロパン、駐車場、対面キッチン、システムキッチン(浄水器一体型水栓)、床下収納、シャワードレッサー、浴室乾燥機、1坪バス、オートバス、シャワートイレ1F/2F、人感センサー付玄関灯、TVモニター付インターホン、ピッキング対策付玄関ドア、複層ガラス、階段手摺、24時間換気、フラット35S、制震装置、住宅性能評価取得
学区 川村 1,800m/山北 1,600m
取引態様 仲介
物件コード 51137
※掲載されている物件データが現状と異なる場合は現状を優先します。

更新情報

情報更新日 2026年02月10日
次回更新予定日 2026年02月11日
取引条件有効期限 2026年02月24日

ローンシミュレーション

物件価格 2,180万円
頭金 万円
金利
借入期間
再計算
月々の返済額
年間の返済額
返済総額
利息合計
※ 毎回の返済額が開始から終了まで均等となる「元利均等返済」で算出しています。
※ 金利は期間中固定となる固定金利を採用しています。
※ 月々の返済額は小数点以下を繰り上げしております
※ シミュレーションでの結果は、あくまでも目安で、概算になります。実際にローン契約をする際は、詳細を金融機関にご確認ください。
※ 実際のローン契約時には諸費用・税金(手数料や印紙税、保証料など)が別途かかりますので、契約の際にご確認ください。

物件コード「51137」をお伝えください。

電話でお問合せ LINEでお問合せ
電話 メール LINE
メールでお問合せ
OK