Cradle garden 南足柄市和田河原第17 1号棟 全3棟 / 新築戸建て

価格 2,780万円

1/9
Point

\家族の笑顔があふれる新しい暮らしを、南足柄市和田河原で。全居室南向きの明るい新築分譲住宅が誕生しました。/

大雄山線「和田河原」駅まで徒歩3分、小田急線「開成」駅も徒歩圏内で、2路線利用可能。電車通勤・通学にも便利な立地で、お出かけやお買い物もスムーズです。
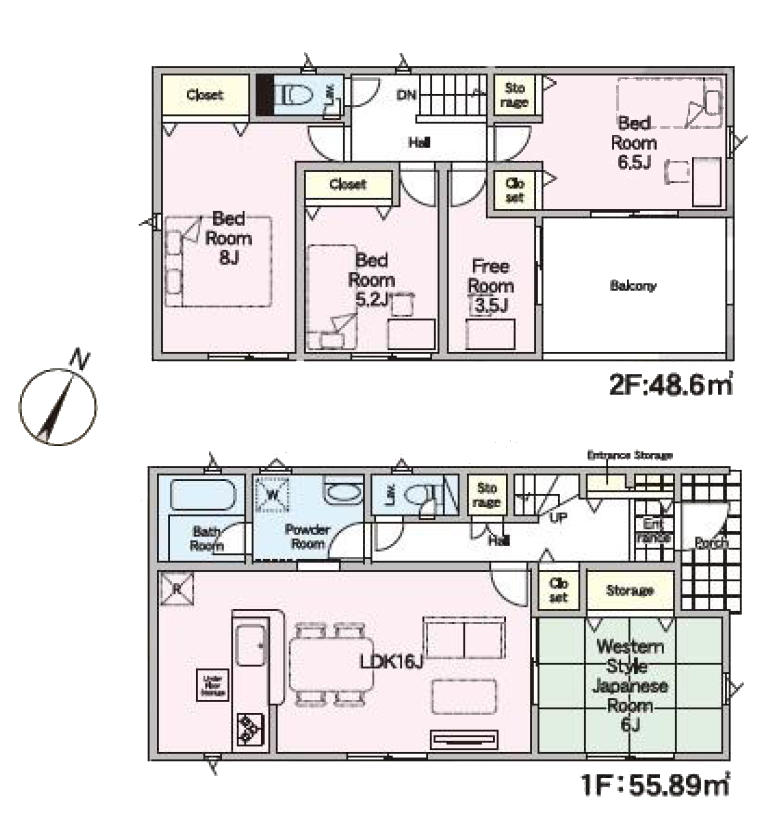
16帖の広々LDKは家族が自然と集まる心地よい空間。続きの6帖和室は、お子さまの遊び場や来客用にも便利です。
2台分の縦列駐車スペース完備で、車生活も快適。北西×東道路の角地ならではの開放感が魅力です。
さらに、住宅性能表示取得済みで、耐震性・断熱性など安心の品質。毎日の暮らしに「安心」と「快適」をお届けします。
家族みんなの“これから”を育む住まいを、ぜひ現地でご体感ください。

物件コード「51066」をお伝えください。

電話でお問合せ LINEでお問合せ

物件情報

種目 新築戸建
所在地
南足柄市和田河原
交通 大雄山線 和田河原駅まで 徒歩3分
小田急線 開成駅まで 徒歩32分
大雄山線 大雄山駅まで 徒歩22分
最寄りバス停
間取り 4LDK
現況 建設中
西暦築年月 2026/01
土地面積 161.58m²(48.87坪)
建物面積 104.49m²(31.6坪)
建ぺい率 50%
容積率 100%
建物構造 木造
地目 宅地
土地権利 所有権
借地料 -
用途地域 第一種低層住居専用地域
都市計画 市街化区域
築年月 2026/01
建築確認番号 第KBI-SGM25-10-4143号
諸費用
接道 北西 6.5m(幅員) 私道 位置指定有 13.5m(接面)
東 4m(幅員) 公道 12.1m(接面)
セットバック
私道面積 -
駐車場 2台
特色 公営水道、東京電力、プロパン、駐車場、対面キッチン、システムキッチン(浄水器一体型水栓)、床下収納、シャワードレッサー、浴室乾燥機、1坪バス、オートバス、シャワートイレ1F/2F、人感センサー付玄関灯、TVモニター付インターホン、ピッキング対策付玄関ドア、複層ガラス、階段手摺、24時間換気、フラット35S、制震装置、住宅性能評価取得
学区 向田 800m/足柄台 1,200m
取引態様 仲介
物件コード 51066
※掲載されている物件データが現状と異なる場合は現状を優先します。

更新情報

情報更新日 2025年11月18日
次回更新予定日 2025年11月19日
取引条件有効期限 2025年12月02日

ローンシミュレーション

物件価格 2,780万円
頭金 万円
金利
借入期間
再計算
月々の返済額
年間の返済額
返済総額
利息合計
※ 毎回の返済額が開始から終了まで均等となる「元利均等返済」で算出しています。
※ 金利は期間中固定となる固定金利を採用しています。
※ 月々の返済額は小数点以下を繰り上げしております
※ シミュレーションでの結果は、あくまでも目安で、概算になります。実際にローン契約をする際は、詳細を金融機関にご確認ください。
※ 実際のローン契約時には諸費用・税金(手数料や印紙税、保証料など)が別途かかりますので、契約の際にご確認ください。

物件コード「51066」をお伝えください。

電話でお問合せ LINEでお問合せ
電話 メール LINE
メールでお問合せ
OK