Cradle garden 南足柄市中沼第12Ⅱ期 2号棟 全9棟|新築分譲住宅

価格 1,880万円

1/11
Point

-住宅性能評価書取得済!安心・快適な暮らしを叶える南足柄市中沼の新築一戸建て-

住宅性能評価書取得済!南足柄市中沼に誕生した新築一戸建て住宅のご紹介です。耐震性や断熱性など、目には見えない住宅性能を等級や数値で「見える化」することで、ご家族の安心をしっかりサポート。さらに、住宅ローンの金利優遇制度の対象となるため、経済的メリットも。
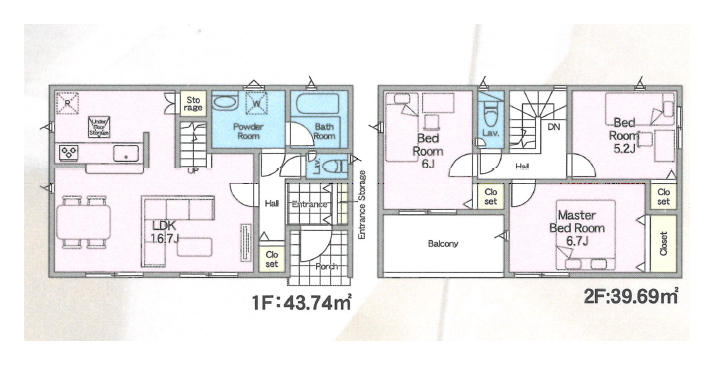
玄関すぐ横には洗面所とバスルームがあり、帰宅後すぐに手洗いや入浴ができる動線も魅力の3LDKです。
感染対策やお子様の習慣づけにもぴったりです。駐車スペースは3台分のゆとりを確保。来客時や複数台所有のご家庭でも安心です。
交通アクセスも良好!大雄山線「和田河原」駅まで徒歩11分で、通勤・通学にも便利な立地。静かな住宅街でありながら、駅近の利便性も手に入ります。
性能×立地×安心を兼ね備えた一邸、ぜひ現地でご体感ください。

物件コード「51006」をお伝えください。

電話でお問合せ LINEでお問合せ

物件情報

種目 新築戸建
所在地
南足柄市中沼
交通 大雄山線 和田河原駅まで 徒歩11分
大雄山線 大雄山駅まで 徒歩23分
小田急線 開成駅まで バス8分 停歩6分
最寄りバス停 最寄りバス停:中沼入口
間取り 3LDK
現況 建設中
西暦築年月 2025/11
土地面積 170.27m²(51.5坪)
建物面積 83.43m²(25.23坪)
建ぺい率 60%
容積率 200%
建物構造 木造
地目 宅地
土地権利 所有権
借地料 -
用途地域 準工業地域
都市計画 市街化区域
築年月 2025/11
建築確認番号 第KBI-SGM25-10-2804号
諸費用
接道 南 5.1m(幅員) 公道 3m(接面)
セットバック
私道面積 -
駐車場 3台
特色 公営水道、公共下水、東京電力、プロパン、駐車場、駐車場3台以上可、対面キッチン、システムキッチン(浄水器一体型水栓)、床下収納、シャワードレッサー、浴室乾燥機、1坪バス、オートバス、シャワートイレ1F/2F、人感センサー付玄関灯、TVモニター付インターホン、ピッキング対策付玄関ドア、複層ガラス、階段手摺、24時間換気、南道路、日当たり良好、フラット35S、制震装置、住宅性能評価取得、ウォークインクローゼット、ロフト
学区 南足柄 2,270m/南足柄 2,270m
取引態様 仲介
物件コード 51006
※掲載されている物件データが現状と異なる場合は現状を優先します。

更新情報

情報更新日 2026年03月02日
次回更新予定日 2026年03月03日
取引条件有効期限 2026年03月16日

ローンシミュレーション

物件価格 1,880万円
頭金 万円
金利
借入期間
再計算
月々の返済額
年間の返済額
返済総額
利息合計
※ 毎回の返済額が開始から終了まで均等となる「元利均等返済」で算出しています。
※ 金利は期間中固定となる固定金利を採用しています。
※ 月々の返済額は小数点以下を繰り上げしております
※ シミュレーションでの結果は、あくまでも目安で、概算になります。実際にローン契約をする際は、詳細を金融機関にご確認ください。
※ 実際のローン契約時には諸費用・税金(手数料や印紙税、保証料など)が別途かかりますので、契約の際にご確認ください。

物件コード「51006」をお伝えください。

電話でお問合せ LINEでお問合せ
電話 メール LINE
メールでお問合せ
OK