Cradle garden 南足柄市塚原第35 2号棟 全3棟|新築一戸建て

価格 2,680万円

1/12
Point

子育て世代にぴったり!南足柄市塚原に誕生した新築一戸建ては、住宅性能と暮らしやすさを兼ね備えた理想的な住まいです。
本物件は、第三者機関による「設計住宅性能評価書」と「建設住宅性能評価書」の両方を取得しており、設計段階から建築完了後まで、住宅の品質と性能がしっかり確認されています。耐震性や省エネ性など、多くの項目で安心して暮らせる基準を満たしています。
さらに注目すべきは、制震装置「SAFE365」の搭載です。この装置は、建物自体がもつ耐震性能を長く維持していくために重要な役割を果たします。高層ビルなどでも使用されている粘弾性素材を採用し、地震の揺れを効果的に吸収。2枚のプレートの動きに応じて変形し、衝撃を和らげることで、万が一の地震にも備える安心の構造となっています。
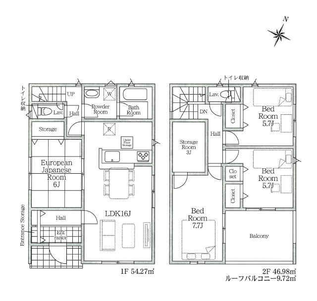
おうちは4LDK+3帖のストレージルーム付きで、荷物が増えがちなファミリーにもぴったり。16帖のLDKには、ご家族の会話が自然と弾む対面キッチンを採用。リビング横には6帖の和室があり、お子さまの遊び場やお昼寝スペースにも便利です。
並列で3台駐車可能なので、将来の車の増台や来客時も安心。
通勤・通学に便利な大雄山線「塚原」駅まで徒歩9分、「岩原」駅まで徒歩14分とアクセスも良好です。
家族の毎日に、ちょうどいい安心と快適を。ぜひ一度、現地でご覧ください。

物件コード「50979」をお伝えください。

電話でお問合せ LINEでお問合せ

物件情報

種目 新築戸建
所在地
南足柄市塚原
交通 大雄山線 塚原駅まで 徒歩9分
大雄山線 岩原駅まで 徒歩14分
最寄りバス停
間取り 4SLDK
現況 建設中
西暦築年月 2025/11
土地面積 165.23m²(49.98坪)
建物面積 101.25m²(30.62坪)
建ぺい率 50%
容積率 100%
建物構造 木造
地目 宅地
土地権利 所有権
借地料 -
用途地域 第一種低層住居専用地域
都市計画 市街化区域
築年月 2025/11
建築確認番号 第KBI-SGM25-10-3049号
諸費用
接道 東 4.5m(幅員) 公道
南 4.2m(幅員) 公道
セットバック
私道面積 -
駐車場 2台
特色 公営水道、公共下水、東京電力、プロパン、駐車場、対面キッチン、システムキッチン(浄水器一体型水栓)、床下収納、シャワードレッサー、1坪バス、オートバス、シャワートイレ1F/2F、人感センサー付玄関灯、TVモニター付インターホン、ピッキング対策付玄関ドア、納戸/サービスルーム/フリールーム、複層ガラス、階段手摺、24時間換気、フラット35S、制震装置、住宅性能評価取得
学区 岡本 1,000m/岡本 1,000m
取引態様 仲介
物件コード 50979
※掲載されている物件データが現状と異なる場合は現状を優先します。

更新情報

情報更新日 2025年11月18日
次回更新予定日 2025年11月19日
取引条件有効期限 2025年12月02日

ローンシミュレーション

物件価格 2,680万円
頭金 万円
金利
借入期間
再計算
月々の返済額
年間の返済額
返済総額
利息合計
※ 毎回の返済額が開始から終了まで均等となる「元利均等返済」で算出しています。
※ 金利は期間中固定となる固定金利を採用しています。
※ 月々の返済額は小数点以下を繰り上げしております
※ シミュレーションでの結果は、あくまでも目安で、概算になります。実際にローン契約をする際は、詳細を金融機関にご確認ください。
※ 実際のローン契約時には諸費用・税金(手数料や印紙税、保証料など)が別途かかりますので、契約の際にご確認ください。

物件コード「50979」をお伝えください。

電話でお問合せ LINEでお問合せ
電話 メール LINE
メールでお問合せ
OK