耐震・耐火・耐久性に優れたストックヘーベルハウス軽量鉄骨造 敷地面積120坪以上|南足柄市 中古戸建て

価格 3,540万円

1/15
Point

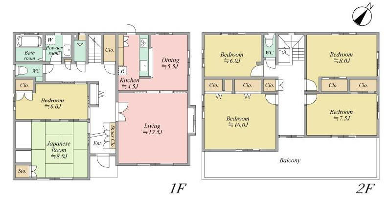
南足柄市向田 ゆったり129.63坪の敷地に佇む、6LDK中古一戸建てです。ストックヘーベルハウスの軽量鉄骨造で安心の構造。広々とした20帖以上のLDKをはじめ、全6部屋の大型間取りでご家族みんなが快適に暮らせます。
富士フイルム前駅徒歩3分の好立地で、通勤やお出かけも便利。駐車スペースは約2台分(※車両サイズにより異なる場合あり)、北西側・南東側の2方向道路に面し、日当たり良好です。
1坪バス、オートバス、浴室乾燥機、床暖房、シャワートイレ(1F・2F)、システムキッチン(浄水器一体型水栓)など、快適生活を支える仕様が満載。2階にはゆったりサイズの南側全面バルコニーもあり、開放感あふれる住まいです。
豊かな自然と利便性を両立させた南足柄市向田の魅力的な物件、この機会にぜひご検討ください。

※車輛サイズにより2台駐車ができないこともあります。
※本物件は都市計画道路に一部含まれています。再建築の際は、建築許可が必要となる場合があります。
※公有地拡大法の制限により、売買契約締結の3週間前までに南足柄市長へ届出をする必要があります。このため契約時期については応相談となります。

物件コード「50969」をお伝えください。

電話でお問合せ LINEでお問合せ

物件情報

種目 中古戸建
所在地
南足柄市向田
交通 大雄山線 富士フイルム前駅まで 徒歩3分
大雄山線 大雄山駅まで 徒歩12分
最寄りバス停
間取り 6LDK
現況 空家
西暦築年月 1994/12
土地面積 428.55m²(129.63坪)
建物面積 175.08m²(52.96坪)
建ぺい率 50%
容積率 100%
建物構造 軽量鉄骨造
地目 宅地
土地権利 所有権
借地料 -
用途地域 第一種低層住居専用地域
都市計画 市街化区域
築年月 1994/12
建築確認番号
諸費用
接道 北西 4.9m(幅員) 公道 位置指定無 17.4m(接面)
南東 6.7m(幅員) 公道 位置指定無 17.9m(接面)
セットバック
私道面積 -
駐車場 2台
特色 公営水道、公共下水、プロパン、駐車場、1坪バス、オートバス、南道路、日当たり良好、システムキッチン(浄水器一体型水栓)、対面キッチン、シャワートイレ1F/2F、シャワードレッサー、浴室乾燥機、床暖房、床下収納、TVモニター付インターホン、ガレージ・カーポート・地下車庫
学区 向田 535m/足柄台 945m
取引態様 仲介
物件コード 50969
※掲載されている物件データが現状と異なる場合は現状を優先します。

更新情報

情報更新日 2026年03月02日
次回更新予定日 2026年03月03日
取引条件有効期限 2026年03月16日

ローンシミュレーション

物件価格 3,540万円
頭金 万円
金利
借入期間
再計算
月々の返済額
年間の返済額
返済総額
利息合計
※ 毎回の返済額が開始から終了まで均等となる「元利均等返済」で算出しています。
※ 金利は期間中固定となる固定金利を採用しています。
※ 月々の返済額は小数点以下を繰り上げしております
※ シミュレーションでの結果は、あくまでも目安で、概算になります。実際にローン契約をする際は、詳細を金融機関にご確認ください。
※ 実際のローン契約時には諸費用・税金(手数料や印紙税、保証料など)が別途かかりますので、契約の際にご確認ください。

物件コード「50969」をお伝えください。

電話でお問合せ LINEでお問合せ
電話 メール LINE
メールでお問合せ
OK