Cradle garden 開成町中之名第14 1号棟 全1棟

価格 2,880万円

1/15
Point

|開成町中之名・新築一戸建て4LDK 家族にうれしい暮らしがここに!暮らしやすさと利便性を兼ね備えたファミリー向け邸宅|

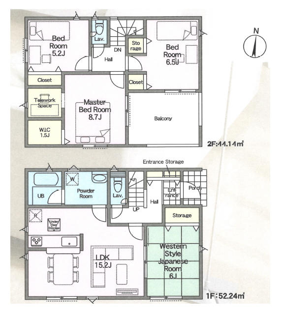
開成町中之名に、子育てファミリーにぴったりの新築一戸建てが登場しました。間取りは使いやすい4LDKで、15.2帖のゆとりあるLDKには、隣接する6帖の和室も備わっており、小さなお子さまの遊び場やお昼寝スペース、ご家族やご友人の来客時にも柔軟に対応できます。
並列で3台駐車可能なカースペースも魅力のひとつ。共働きのご夫婦や車を複数所有するご家庭でも安心して暮らせます。また、住宅性能表示を取得済みで、耐震性や省エネ性など、家族を守る性能面でもしっかりとした安心感があります(省エネ等級★★★☆☆☆)。
周辺にはロピアをはじめとしたスーパーや飲食店が点在しており、日々の買い物や外食にも便利な住環境が整っています。接道は東側4.5mの道路に面しており、朝日が心地よく差し込む、明るく風通しの良い住まいです。
安心・快適な暮らしを求めるファミリーにとって、日々の暮らしがもっと楽しく、もっと豊かになる住まいです。ぜひ一度ご見学ください。

物件コード「50952」をお伝えください。

電話でお問合せ LINEでお問合せ

物件情報

種目 新築戸建
所在地
開成町中之名
交通 小田急線 開成駅まで 徒歩28分
最寄りバス停
間取り 4LDK
現況 建設中
西暦築年月 2025/10
土地面積 144.55m²(43.72坪)
建物面積 96.38m²(29.15坪)
建ぺい率 50%
容積率 100%
建物構造 木造
地目 宅地
土地権利 所有権
借地料 -
用途地域 第二種低層住居専用地域
都市計画 市街化区域
築年月 2025/10
建築確認番号 第R07SHC111006号
諸費用
接道 東 4.5m(幅員) 公道 5m(接面)
セットバック
私道面積 -
駐車場
特色 公営水道、東京電力、プロパン、駐車場、、駐車場3台以上可、システムキッチン(浄水器一体型水栓)、床下収納、対面キッチン、ワークスペース/書斎、ウォークインクローゼット、シャワードレッサー、浴室乾燥機、1坪バス、オートバス、シャワートイレ1F/2F、人感センサー付玄関灯、TVモニター付インターホン、ピッキング対策付玄関ドア、複層ガラス、階段手摺、24時間換気、フラット35S、制震装置、住宅性能評価取得
学区 開成 734m/文命 1,492m
取引態様 仲介
物件コード 50952
※掲載されている物件データが現状と異なる場合は現状を優先します。

更新情報

情報更新日 2025年10月04日
次回更新予定日 2025年10月05日
取引条件有効期限 2025年10月17日

ローンシミュレーション

物件価格 2,880万円
頭金 万円
金利
借入期間
再計算
月々の返済額
年間の返済額
返済総額
利息合計
※ 毎回の返済額が開始から終了まで均等となる「元利均等返済」で算出しています。
※ 金利は期間中固定となる固定金利を採用しています。
※ 月々の返済額は小数点以下を繰り上げしております
※ シミュレーションでの結果は、あくまでも目安で、概算になります。実際にローン契約をする際は、詳細を金融機関にご確認ください。
※ 実際のローン契約時には諸費用・税金(手数料や印紙税、保証料など)が別途かかりますので、契約の際にご確認ください。

物件コード「50952」をお伝えください。

電話でお問合せ LINEでお問合せ
電話 メール LINE
メールでお問合せ
OK